THE MOR SYSTEM
We have 4 standard units to choose from with a variety of add on options and personalizations
MOR 8
8’x12′ enclosed with 4’x12′ covered porch
Good size for garden shed, equipment storage
Add 2 additional porch sections for a great outdoor eating area (12’x12′ covered porch) and use enclosed section as an outdoor kitchen (8’x12′)
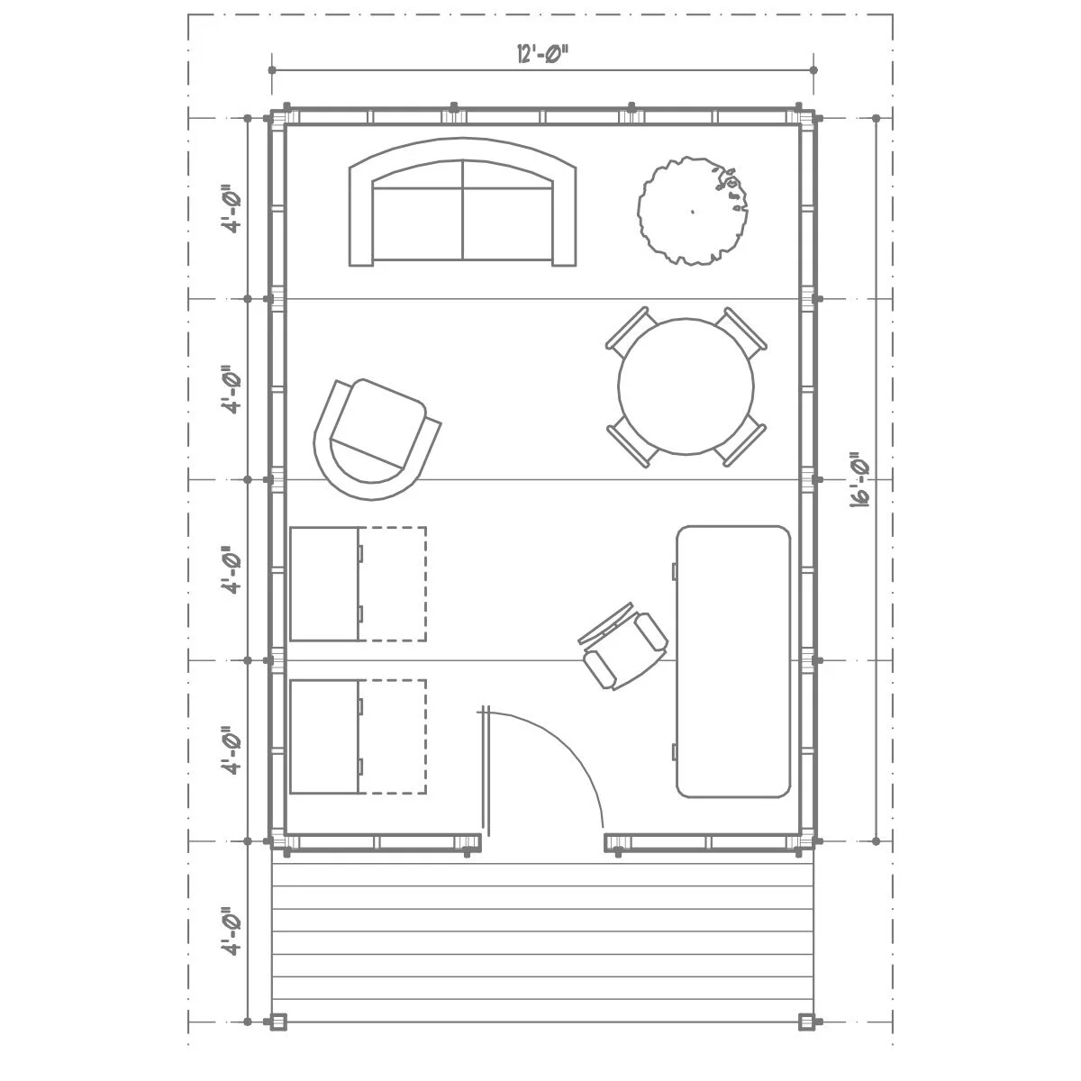
MOR 12
12’x12′ enclosed with 4’x12′ covered porch
Appropriate for guest house, home office, writing studio, upsized garden shed, man cave, bike shop or exercise space
Great for small rental cabin without plumbing
MOR 16
16’x12′ enclosed with 4’x12′ covered porch
Makes a spacious guest house, studio or exercise space. Large enough office for 2 desks or to receive clients and hold small meetings
Interior partition wall could be added to provide out-of-site 4’x12′ storage closet for records or supplies
Add an additional 4′ porch section for a great starter structure for your vacation property – convert to guest house later or just keep it simple!
MOR 12.16
16’x12′ and 12’x12′ enclosed connected by 8’x12 covered porch
Fantastic home office – use the larger enclosed section for the office and the smaller for storage
Very hip vacation cottage – use the larger section for living and the smaller for sleeping
Excellent accessory structure to any home needing guest or nanny space and storage
Porch section could be easily screened by owner for additional 3 season space

